CELSA: VIVIENDAS

 

english version

 

Las ruinas de la Colonia Celsa han dado buenos ejemplos de diversos tipos de domus decoradas con bellos mosaicos.

 

Click aquí para saber más acerca de las viviendas en época romana.

 

 

 

La ínsula I: La Casa de los Delfines:

Dentro de la ínsula I destaca la Casa de los Delfines, así llamada por los diversos mosaicos en opus signinum –con pequeñas teselas blancas o negras sobre un fondo de cemento hidráulico rojo- donde aparecen delfines, es una domus de unos 724 m2, localizada en la llamada ínsula I, con un patio central con aljibe; la domus se organizaba entorno a un atrio testudinado al que daban estancias como el tablinum y cubicula; en la domus había estancias para los dueños de la casa, pero también estancias para trabajos y servicios varios y para los esclavos; además, había un pequeño huerto, un granero y cuadras; la existencia de un segundo piso suponía una gran superficie de la vivienda.  El aspecto final de la casa, tras diversas remodelaciones, corresponde al período del emperador Claudio, hacia el 54 d. C.

 

Detalle de uno de los mosaicos decorados con delfines que dan nombre a la casa.

  (Foto: Roberto Lérida Lafarga 21/06/2008)

 

 

 

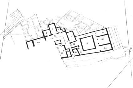
Planta de la Casa de los Delfines procedente de BELTRÁN LLORIS, Miguel: Celsa, (Colección Guías Arqueológicas de Aragón 2), Zaragoza, 1991

 

Maqueta de la Casa de los Delfines en el Museo de Celsa (Museo Provincial de Zaragoza).

  (Foto: Roberto Lérida Lafarga 21/06/2008)

 

 

 

En varias de las estancias se han localizado mosaicos en opus signinum con motivos geométricos y con figuras de delfines.  La casa fue reformada a finales del período de Augusto y a principios del de Tiberio (s. I d. C.).  El dueño de la casa parece ser que fue Lucio Licinio Ático, liberto descendiente del magistrado monetario de la colonia, Lucio Licinio Sura, según un sello matriz que se encontró en la vivienda.

 

Sello en alabastro donde se lee L.LICI.AT, es decir, L(ucius) Lici(nius) At(ticus), nombre del posible dueño  de la Casa de los Delfines en el Museo de Celsa (Museo Provincial de Zaragoza).    (Foto: Roberto Lérida Lafarga 21/06/2008)

 

Restos de la Casa de los Delfines cubiertos para proteger sus mosaicos.

  (Foto: Roberto Lérida Lafarga 21/06/2008)

 

 

 

Uno de los mosaicos de los Delfines.    (Foto: Roberto Lérida Lafarga 21/06/2008)

 

Otro de los mosaicos de los Delfines.    (Foto: Roberto Lérida Lafarga 21/06/2008)

 

 

 

La ínsula II

Al otro lado de la calle IV al sur y tras la casa de los Delfines se encuentra esta otra ínsula donde se han encontrado distintos edificios, tales como residencias privadas, una zona de almacenamiento y zonas de servicios públicos como tabernas, una panadería, un pequeño mercado y un restaurante.

Planta de la ínsula II procedente de los paneles informativos del recinto arqueológico.

(Foto: Roberto Lérida Lafarga 21/06/2008)

 

Vista de los restos de la ínsula II.

  (Foto: Roberto Lérida Lafarga 21/06/2008)

 

 

 

La ínsula VII

Esta ínsula de forma irregular, formando casi un gran triángulo, adoptó su forma por la orografía del terreno y por el desarrollo de la colonia con cambio en la orientación de las calles y con reformas urbanas.  Aquí se han localizado tres domus: la Casa de la Tortuga, la Casa del Emblema Blanco y Negro y la Casa de Hércules.

 

Vista de parte de los restos de la ínsula VII.

  (Foto: Roberto Lérida Lafarga 21/06/2008)

 

 

 

La Casa de la Tortuga

Es una vivienda edificada entorno a un atrio cubierto –testudinado-, alrededor del cual se encuentran los dormitorios –cubicula- y un gran tablinum; un amplio vestibulum daría acceso al triclinium y a una zona enlosada; una escalera permitía el acceso a un piso superior y al sur de la domus había un huerto.  En esta domus se han localizado pavimentos en mortero blanco en el vestibululm, atrium y tablinum, mientras que en otras estancias había suelos de tierra o gravilla muy fina; en la entrada de la casa se puede leer un pequeño mosaico con teselas sobre opus signinum donde se lee CAVE CANE (“cuidado con el perro”).

 

Planta de la Casa de la Tortuga procedente de los paneles informativos del recinto arqueológico.

 (Foto: Roberto Lérida Lafarga 21/06/2008)

 

 

 

Vestibulum de la Casa de la Tortuga con el mosaico con inscripción.

 (Foto: Roberto Lérida Lafarga 21/06/2008)

 

Mosaicos de la Casa de la Tortuga con inscripción.    (Foto: Roberto Lérida Lafarga 21/06/2008)

 

 

 

La Casa del Emblema Blanco y Negro

Así llamada por un emblema de mosaico en opus tessellatum que adornaba el suelo del tablinum con un motivo geométrico en blanco y negro rodeado de placas de mármol.  Por el estilo, esta domus fue construida en el período del emperador Augusto, antes de cristo.  Por un vestibulum se accedía a un atrio testudinado donde se abría el tablinum; la domus tenía también un piso superior y una zona de servicios de pequeño tamaño.

 

Planta de la Casa del Emblema Blanco y Negro  procedente de los paneles informativos del recinto arqueológico.  (Foto: Roberto Lérida Lafarga 21/06/2008)

 

 

 

La Casa de Hércules

Esta domus, de construcción temprana siguiendo el estilo de las casas itálicas, presenta atrio toscano (sustentado con grandes vigas), si bien posteriormente, en época de Augusto, se añadió un atrio porticado en la zona norte.  El agua recogida en el impluvium se almacenaba en un gran aljibe.  Destaca la decoración de los pavimentos en sus triclinia, sobre todo el triclinium I con una roseta de seis pétalos con delfines y cuadrícula enmarcada por orlas con esquematizaciones vegetales, bandas de esvásticas, retículas de hexágonos, etc.  Las paredes de este triclinium estaban decoradas con escenas del ciclo heroico de Hércules.  Algunos cubicula estaban decorados con pavimentos con mosaicos en opus signinum rojo y mortero blanco.

 

Planta de la Casa de Hércules  procedente de los paneles informativos del recinto arqueológico.

 (Foto: Roberto Lérida Lafarga 21/06/2008)

 

 

 

Fragmento de uno de los frescos del triclinium de la Casa de Hércules con escenas del héroe, expuesto en el Museo de Celsa (Museo Provincial de Zaragoza).

  (Foto: Roberto Lérida Lafarga 21/06/2008)

 

Fragmento de uno de los frescos del triclinium de la Casa de Hércules con escenas del héroe, expuesto en el Museo de Celsa (Museo Provincial de Zaragoza).

  (Foto: Roberto Lérida Lafarga 21/06/2008)

     

Mosaico de la Casa de Hércules.    (Foto: Roberto Lérida Lafarga 21/06/2008)

 

Mosaico de la Casa de Hércules.    (Foto: Roberto Lérida Lafarga 21/06/2008)

 

 

 

Mosaico de la Casa de Hércules.    (Foto: Roberto Lérida Lafarga 21/06/2008)

 

Mosaico de la Casa de Hércules.    (Foto: Roberto Lérida Lafarga 21/06/2008)

     

 

 

Fuente:

- BELTRÁN LLORIS, Miguel: Celsa, (Colección Guías Arqueológicas de Aragón 2), Zaragoza, 1991